
Trên mảnh đất chỉ rộng 70m2, với mặt tiền vỏn vẹn 4m nằm trong một con hẻm sầm uất ở nội thành TP.HCM, ngôi nhà được xây dựng như một lời giải táo bạo cho bài toán nhà ở đô thị. Bao quanh công trình là những khối nhà cao tầng san sát, song công trình vẫn mở ra một “khoảng thở” nhờ cách tổ chức không gian thông minh và lối thiết kế giàu cảm xúc.


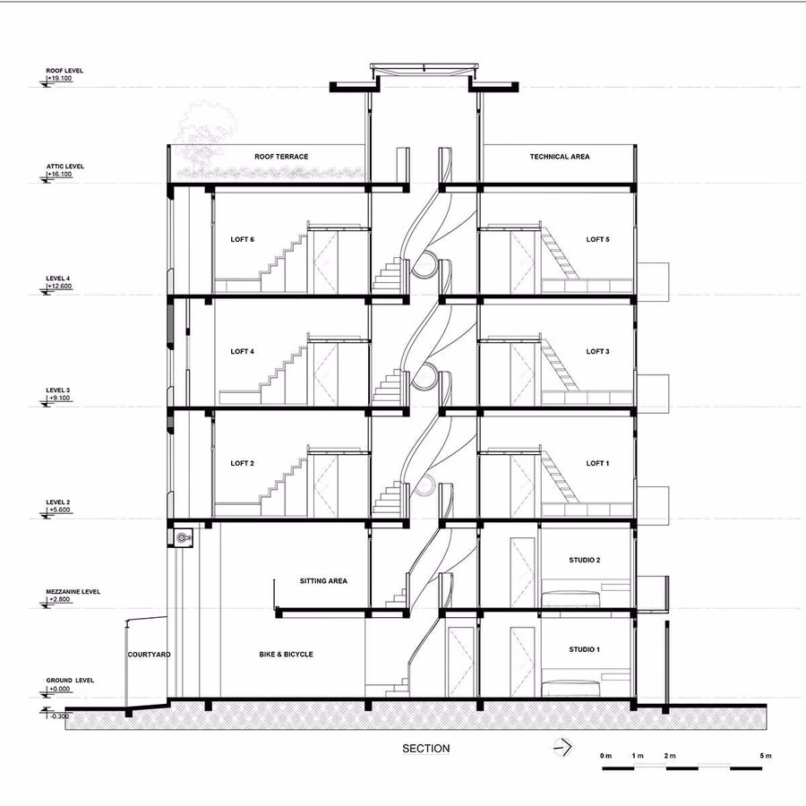
Giải pháp được nhóm kiến trúc sư đưa ra là khai thác chiều cao với hệ thống gác lửng. Sáu căn hộ kiểu gác lửng và hai phòng tiêu chuẩn được bố trí gọn gàng trong khối nhà hẹp. Mỗi căn hộ có chiều cao trần 3,5m, tầng dưới dành cho cho phòng khách và bếp, tầng lửng biến thành phòng ngủ nhỏ gọn nhưng đảm bảo riêng tư. Nhờ cách phân chia này, căn hộ dù nhỏ nhưng vẫn rộng rãi, ấm cúng, các chức năng được tách biệt rõ ràng.


Điểm khác biệt khiến Cloud House vượt xa mô hình trọ truyền thống chính là tinh thần cộng đồng. Cầu thang xoắn đặt ở trung tâm khối nhà vừa dẫn sáng, thông gió, vừa trở thành lõi giao tiếp tự nhiên. Tầng lửng được bố trí khu vực tiếp khách chung, trong khi sân thượng xanh mát trở thành không gian gặp gỡ, trò chuyện, gắn kết những cư dân xa lạ. Trong bối cảnh nhiều khu trọ đô thị thường bị coi là “tạm bợ”, Cloud House khuyến khích mọi người “gặp nhau nhiều hơn” để hình thành những sợi dây kết nối bền chặt.


Dấu ấn nhận diện đặc biệt của công trình nằm ở các ô cửa hình tròn và hình đám mây mềm mại, vừa lấy sáng, thông gió, vừa tạo nên hiệu ứng thị giác giàu chất thơ. Ánh sáng tự nhiên, bóng đổ, sự đặc - rỗng đan xen biến không gian chật hẹp thành trải nghiệm sống thi vị. Các giải pháp giếng trời và hệ cửa trước - sau cũng giúp thiên nhiên hiện diện trong từng căn hộ, tạo nên những khoảng thở trong lòng đô thị ngột ngạt.



Không chỉ hướng đến kinh tế, ngôi nhà còn là nơi ở giá rẻ không đồng nghĩa với đánh đổi chất lượng sống. Với vật liệu dễ thi công và bền vững như gỗ công nghiệp, cemboard, thép lắp ghép; với bảng màu trung tính và đồ nội thất đa chức năng, công trình vừa tiết kiệm chi phí vừa bảo đảm sự bền vững lâu dài.


Cloud House vì thế không đơn thuần là chỗ ở mà còn là đại diện cho những không gian sống đẹp, tiết kiệm giữa lòng đô thị chật hẹp. Công trình mở ra hướng tiếp cận mới cho nhà ở đô thị, không chỉ giải quyết bài toán diện tích và kinh tế mà còn định hình chất lượng sống đáng mơ ước cho thế hệ trẻ hôm nay.

Theo Lâm Thuỳ Dương (TPO)