![]() |
| Căn hộ rộng 125 m2 ở Hà Đông được thiết kế cho gia đình bốn người. Gia chủ thường xuyên làm việc ở nhà nên căn hộ được thiết kế trên tiêu chí đơn giản, gọn gàng ngăn nắp, tiện dụng. |
![]() |
| Căn hộ được bàn giao thô. Khi cải tạo, các kiến trúc sư đã phá dỡ hết phần tường đã xây để phân chia lại toàn bộ không gian. |
![]() |
| Nội thất tinh giản cả về màu sắc lẫn chi tiết. Căn hộ sử dụng bốn màu chính gồm trắng, xám, đen và nâu sáng. Màu trắng, xám, đen đem tới cảm giác sạch sẽ, hiện đại còn màu nâu sáng tăng phần ấm cúng, yếu tố cần thiết đối với nơi ở của một gia đình. |
![]() |
Bàn ăn cũng là nơi gia chủ yêu thích và thường xuyên ngồi làm việc. Nó đủ sáng, thoáng và có thể quan sát hết không gian căn hộ.
![]() |
| Hệ tủ cao chạm trần cho phép chủ nhà giấu hết đồ đạc, kể cả tủ lạnh. Cũng nhờ các hệ tủ và cách bố trí nội thất mà gia chủ có thói quen sống gọn gàng hơn. |
![]() |
| Sảnh dẫn từ không gian sinh hoạt chung vào các phòng chức năng, được phân biệt bởi màu sắc. Cụ thể, bên màu nâu là phòng ngủ của các thành viên gia đình. Bên màu trắng là phòng giặt, nhà vệ sinh chung cùng phòng ngủ khách. |
![]() |
| Phòng ngủ master sử dụng tông màu đen, trắng, xám và chỉ bố trí những đồ dùng thực sự cần thiết. |
![]() |
| Đèn quả nấm trang trí xuất xứ từ Đan Mạch, giá khoảng 5 triệu đồng. |
![]() |
| Một điểm độc đáo trong phòng ngủ master là cánh cửa trượt khu thay đồ. Nó làm bằng thép không gỉ dạng tấm, được đục lỗ bằng máy gia công chính xác CNC. |
Cánh cửa tạo hiệu ứng thị giác mở ảo khi đứng từ ngoài nhìn vào phòng thay đồ. Lúc bên trong bật đèn, ánh sáng hắt ra ngoài, vẽ nên hình vệt sáng trên hành lang phía phòng ngủ.
![]() |
| Phòng tắm master được chia thành những khối màu khác nhau, vừa hấp dẫn về thị giác vừa tạo sự trẻ trung cho đôi vợ chồng còn trẻ. |
![]() |
| Tường ngăn khu vệ sinh với phòng ngủ được lắp một tấm kính để lấy sáng từ bên ngoài. Bức tường được bo tròn để khi đi vào, người ở không bị chạm phải cảm giác góc cạnh. |
![]() |
| So với phòng ngủ của vợ chồng chủ nhà, phòng ngủ trẻ con nhiều màu sắc hơn nhưng vẫn trên tinh thần tối giản. Nhờ bố trí nhiều hộc, tủ với các màu trung tính, đứa trẻ dễ giữ căn phòng gọn gàng và cũng không bị mau chán. |
![]() |
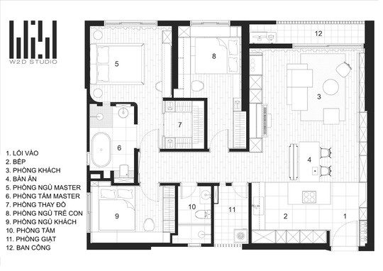
| Bản vẽ bố trí mặt bằng của công trình. |












