Ngôi nhà nằm ở TP Bắc Giang, trong khu dân cư cũ với những lô đất dài và hẹp. Có rất nhiều vấn đề trong ngôi nhà 20 năm tuổi này như không khí ngột ngạt, ít ánh sáng mặt trời, xuống cấp.
![]() |
| Habi House nằm trong khu dân cư cũ với những lô đất dài và hẹp. |
Kiến trúc sư đã đưa ra giải pháp thay đổi, bố trí lại các khu vực chức năng bằng cách hoán đổi vị trí bếp ăn và phòng ngủ, đồng thời đưa cầu thang ra khỏi gác lửng. Những bức tường ngăn cách đã được dỡ bỏ, không gian sống giờ đây được kết hợp và trở nên rộng rãi, mát mẻ hơn.
Việc nâng sàn phòng ngủ tạo nên sự mới mẻ, khô ráo cùng với tầm nhìn bao quát ngôi nhà. Điểm nhấn của ngôi nhà là không gian đệm trước phòng ngủ, là điểm kết nối giữa tầng trệt và tầng lửng, phòng ngủ, phòng khách.
Sân trước, sân sau và khoảng đệm giữa nhà được lợp bằng polycarbonate trong giúp ánh sáng tự nhiên tràn ngập khắp các khu vực trong nhà.
![]() |
| Không gian sống sau cải tạo trở nên rộng rãi và mát mẻ hơn. |
![]() |
| Những bức tường ngăn cách bị dỡ bỏ, không gian trở nên rộng rãi, mát mẻ hơn. |
![]() |
| Không gian đệm kết nối các tầng trệt và tầng lửng, phòng khách, phòng ngủ. |
![]() |
| Sàn phòng ngủ được nâng lên, tạo sự mới mẻ, khô ráo. |
![]() |
| Phòng khách, phòng bếp liền mạch, không còn bức tường ngăn cách chật chội. |
![]() |
| Không gian đệm tràn ngập ánh sáng vì được lợp bằng polycarbonate. |
Thay đổi mái nhà giải quyết thành công các vấn đề về ánh sáng và nhiệt độ. Phần khung chính của ngôi nhà bao gồm tường chịu lực và gác lửng không thay đổi. Tầng lửng được gia cố bằng hệ thống dầm cột thép hình chữ I và thay thế phần mái lợp amiang bị hư hỏng. Nâng mái mới cao hơn tạo khoảng trống và giúp thông gió.
Kiến trúc sư chỉ sử dụng các vật liệu địa phương phổ biến như gạch, thép, mái kim loại, mái mờ và ván ép nhưng vẫn tạo ra những thay đổi ấn tượng.
![]() |
| Tầng lửng được gia cố bằng hệ thống dầm cột thép hình chữ I. |
![]() |
| Mái mới cao hơn tạo nhiều khoảng trống hơn cho tầng lửng, giúp thông gió và đưa ánh sáng vào nhà. |
Sau khi được cải tạo, không gian trong nhà đã thay đổi hoàn toàn. Nó tràn ngập không khí trong lành và ánh sáng. Nhiệt độ ngôi nhà đã được cải thiện đáng kể trong mùa hè nóng bức nhờ hệ thống thông gió tốt hơn. Sắp xếp lại vị trí của các phòng làm cho các chức năng phù hợp hơn với lối sống của chủ sở hữu. Những hình ảnh “trước – sau” về công trình cải tạo này tạo nên sự ngạc nhiên và thích thú khó tả cho người dân địa phương.
![]() |
| Mặt bằng tầng trệt và tầng lửng trước cải tạo. |
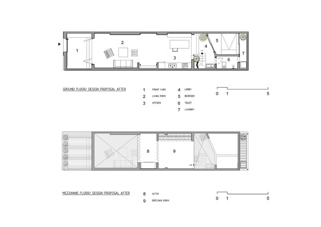
![]() |
| Mặt bằng tầng trệt và tầng lửng sau cải tạo. |
![]() |
| Mặt cắt ngôi nhà Habi House. |
Thông tin công trình
Thiết kế và thi công: S.LA Architecture
Diện tích đất: 65m2
Tổng mức đầu tư: 450 triệu đồng (tại thời điểm năm 2022)
Vị trí: TP Bắc Giang
Chủ trì: Nguyễn Xuân Khương
Thiết kế: Nguyễn Sơn Tùng
Giám sát: Phạm Văn Đạt











