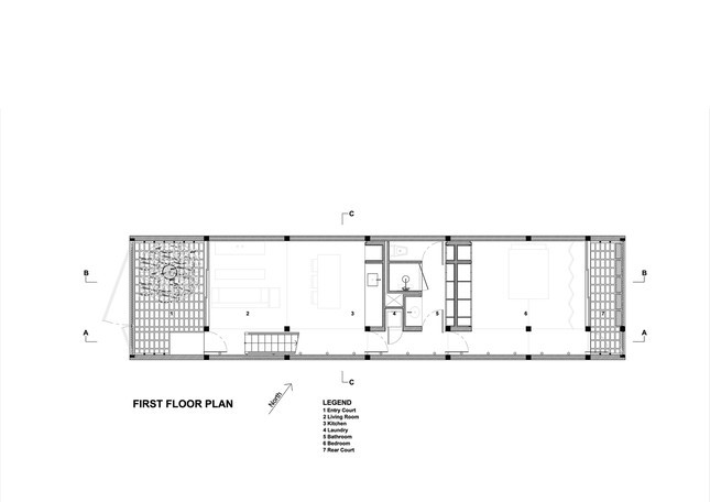
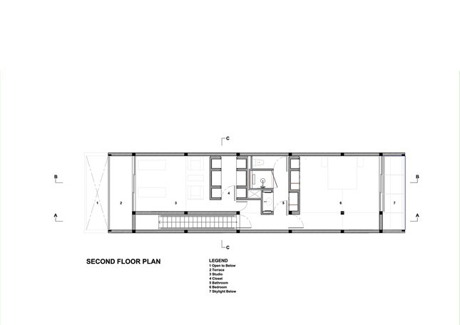
Ngôi nhà tại Đà Nẵng có diện tích 5m x 20m điển hình được thiết kế cho nhu cầu của gia đình thích sự mộc mạc thuần túy bao gồm sân vào, phòng khách, bếp, 2 phòng ngủ, 2 phòng tắm và 1 studio.
Ngôi nhà có vẻ ngoài giản dị với các khung đỡ và gạch bê tông. Để giảm nóng làm mát cho ngôi nhà trong khu vực khí hậu nắng nóng, nhà thiết kế lựa chọn bê tông được khí chưng áp cách nhiệt giúp giảm thiểu sự truyền nhiệt và ngói đất sét cách nhiệt phủ sơn phản quang cho phần mái.
Bên trong nhà, sự mộc mạc được thể hiện bằng các trục rầm đỡ và tường bê tông không sơn trát, điểm nhấn là toàn bộ nội thất màu nâu gỗ trầm mang lại vẻ đẹp cổ điển cho ngôi nhà.
Để giải quyết nhược điểm bí bách, thiếu sáng của nhà ống sâu dài hẹp ngang, giếng trời tại cầu thang được mở, đưa ánh sáng từ trên cao xuống các tầng. Các phương ánh sáng thay đổi theo từng thời điểm nhờ sự chuyển động của mặt trời tạo nên vẻ đẹp mềm mại tự nhiên cho không gian nhà.
Hệ lam được bố trí hai đầu của ngôi nhà để điều tiết thông gió, hút gió từ ngoài trời làm mát không khí bên trong, đồng thời thông gió chéo với giếng trời và các khe hở được bố trí tại các phòng.
Các khe hở được bố trí khắp ngôi nhà không chỉ có chức năng thông khí, nó còn là nhân tố mở đường cho "cuộc dạo chơi của ánh sáng", điều làm nên sự thú vị cho ngôi nhà bình dị không hề sơn trát.
(GLO)- Khối lượng rác thải sinh hoạt tại khu vực Pleiku (tỉnh Gia Lai) tăng nhanh trong khi hạ tầng xử lý quá tải, cơ chế chưa đồng bộ và ý thức một bộ phận người dân còn hạn chế. Thực trạng này khiến công tác thu gom, xử lý gặp nhiều khó khăn, đòi hỏi giải pháp căn cơ và sự chung tay từ cộng đồng.
Căn nhà có diện tích 160m2 và diện tích sử dụng là khoảng 250m2 gồm 1 phòng khách, một bếp, 4 phòng ngủ, 3 WC, 1 phòng thờ và gác lửng. Thời gian xây dựng và hoàn thiện là 8 tháng với tổng chi phí khoảng 2,3 tỷ đồng.
Công trình là một chốn dừng chân bình yên, nơi mỗi ngày thức dậy là một khởi đầu nhẹ nhàng, tràn đầy kết nối với thiên nhiên và những giá trị giản đơn. Ngôi nhà tràn ngập ánh sáng tự nhiên và gió trời qua những khoảng mở rộng, khiến không gian luôn thoáng đãng dù nhịp sống bên ngoài hối hả.
(GLO)- Sáng 27-2, Ban Quản lý Dịch vụ công ích Quy Nhơn (Sở Xây dựng) cho biết đang khẩn trương sửa chữa lan can cầu treo Công Viên (đoạn nối giữa phường Diên Hồng với xã Ia Hrung) bị ô tô tông hư hỏng nặng, tiềm ẩn nguy cơ mất an toàn giao thông.
Căn nhà được xây dựng trên diện tích đất 280 m2, diện tích xây dựng 110m2, ưu điểm lớn nhất là xung quanh khu đất đều nhà thấp, cây cối nhiều và ảnh hưởng nắng hướng Tây không đáng kể, giao thông thuận lợi...
(GLO)- Nhiều năm qua, khu đất nằm ở vị trí trung tâm đô thị Pleiku (tỉnh Gia Lai) gồm khách sạn Sê San cũ tại số 89 Hùng Vương và thửa đất liền kề số 02 Trần Hưng Ðạo vẫn trong tình trạng bỏ hoang, xuống cấp nghiêm trọng.
(GLO)- Những ngày giáp Tết, nhiều địa phương trong tỉnh Gia Lai đồng loạt chỉnh trang, nâng cấp hạ tầng và cảnh quan đô thị. Các công trình được đẩy nhanh tiến độ, góp phần tạo diện mạo khang trang, văn minh phục vụ người dân vui Xuân, đón Tết.
(GLO)- UBND tỉnh Gia Lai vừa ban hành quyết định về việc đấu giá quyền sử dụng đất thực hiện dự án khu đô thị CK54 (phường Pleiku). Đây là dự án khu đô thị quy mô lớn, kỳ vọng tạo động lực phát triển không gian đô thị, hạ tầng kỹ thuật và hạ tầng xã hội khu vực phía Tây của tỉnh.
Với dự án nội thất do 3A Signature thực hiện, sắc xanh thanh lịch được thổi hồn xuyên suốt từng không gian, tạo nên một tổng thể hiện đại, sang trọng và đầy cá tính – nơi mỗi góc nhà đều mang lại cảm xúc muốn ở lại thật lâu.
(GLO)- Tại dự thảo sửa đổi Quy chuẩn kỹ thuật quốc gia về nhà chung cư, Bộ Xây dựng đã bổ sung quy định về khu vực để xe điện, trạm sạc, trạm đổi pin trong dự án chung cư. Dự thảo này đang được Bộ Xây dựng lấy ý kiến của các bộ, ngành, địa phương.
(GLO)- Ngày 6-1, lãnh đạo UBND phường Quy Nhơn Đông (tỉnh Gia Lai) cho biết: Địa phương đang tổ chức thu gom, xử lý rác thải tại 2 tuyến đường giao thông dọc hệ thống tiêu thoát lũ ven sông Dinh.
(GLO)- Nhân rộng công trình đạt tiêu chuẩn xanh nói chung, chứng nhận xanh EDGE nói riêng là mục tiêu đang được ngành Xây dựng tỉnh và nhiều nhà đầu tư theo đuổi.
Concept căn hộ Cát House dựa trên câu chuyện của chủ nhà với mong muốn sở hữu một không gian nhiều cát, ánh nắng và mang hơi thở đại dương: “Chị muốn nhà mình như đang đi dạo trên bãi cát, có nắng, có gió, có sự dịu dàng và nữ tính.”
(GLO)- Sáng 29-12, Ủy ban MTTQ Việt Nam tỉnh Gia Lai triển khai mô hình điểm về bảo vệ môi trường và ứng phó với biến đổi khí hậu tại giáo xứ Kim Châu, phường Bình Định.
Mong muốn của gia chủ là một không gian sống mang tính nghệ thuật, tự do và có cảm xúc, thay vì chạy theo những khuôn mẫu quen thuộc của căn hộ hiện đại.
(GLO)- Dự án Tổ hợp khách sạn và nhà phố thương mại do Công ty cổ phần Tập đoàn FLC làm chủ đầu tư tại phường Diên Hồng (tỉnh Gia Lai) được điều chỉnh thời gian hoàn thành đến tháng 6-2028.
Mục tiêu của công trình là tạo ra 2 khối nhà song song, khu giữa là khu liên kết, nhằm tạo cho tất cả các không gian trong nhà đều có tầm nhìn và điều hòa được đủ ánh sáng và gió lưu thông.
(GLO)- Ủy ban nhân dân tỉnh Gia Lai vừa ban hành quyết định phê duyệt điều chỉnh, bổ sung chủ trương đầu tư dự án cải tạo nút giao thông Phù Đổng (phường Pleiku). Theo đó, tổng mức đầu tư dự án được nâng lên 143,207 tỷ đồng.