![]() |
| Tại ngã ba một con hẻm ở thành phố Quy Nhơn, ngôi nhà ống ba tầng được xây cho đôi vợ chồng cùng hai con trai tên Bin và Bon. |
![]() |
| Chủ nhà muốn nơi ở thoáng đãng, dễ dàng nhìn thấy các con nên kiến trúc sư đưa ra thiết kế như ruộng bậc thang, tầng trên lùi vào so với tầng dưới. |
![]() |
| Tầng trệt dành cho sinh hoạt chung. Phòng khách nối liền với bếp. |
![]() |
| Vì người vợ thích nấu ăn, bếp được dành nhiều diện tích, nằm ở vị trí dễ nhìn bao quát cả nhà. Khi cơm nước, chị vẫn có thể quan sát các con chơi đùa trên tầng. |
![]() |
| Hệ tủ bếp chạy dọc nhà và kệ tủ đứng giúp gia chủ thoải mái để đồ mà vẫn tiết kiệm không gian. |
![]() |
| Do có công trình khác ở phía sau, các kiến trúc sư phải xây tường cao để chắn tầm nhìn. Tuy nhiên, họ bố trí khoảng thông tầng để căn nhà có mặt thoáng thứ hai. Kết hợp với hệ cửa kính, khoảng thông tầng đưa nắng, gió vào nhà. Cây trồng cũng hỗ trợ chống nắng hướng Đông và gắn kết con người với thiên nhiên. |
![]() |
| Những bậc thang rỗng làm thoáng tầm nhìn đồng thời tạo nét trang trí cho tầng trệt. |
![]() |
| Hai tầng còn lại của nhà dành cho các phòng ngủ. Để tạo cảm giác rộng rãi, tăng sáng và đối lưu khí, kiến trúc sư không dùng tường ngăn mà thay bằng hệ cửa gỗ kính trượt có rèm. |
![]() |
| Nhà vệ sinh và hệ thống tủ có cửa cùng chất liệu với tường, trần của phòng ngủ, tạo sự đồng bộ cho không gian. Đặc biệt, trước mỗi tầng có khoảng vườn nhỏ để chắn gió Lào và đèn xe đi vào hẻm. |
![]() |
| Ngôi nhà cũng có mái hiên và khoảng sân lớn để trẻ em hàng xóm tụ tập, chơi đùa với Bin và Bon. |
![]() |
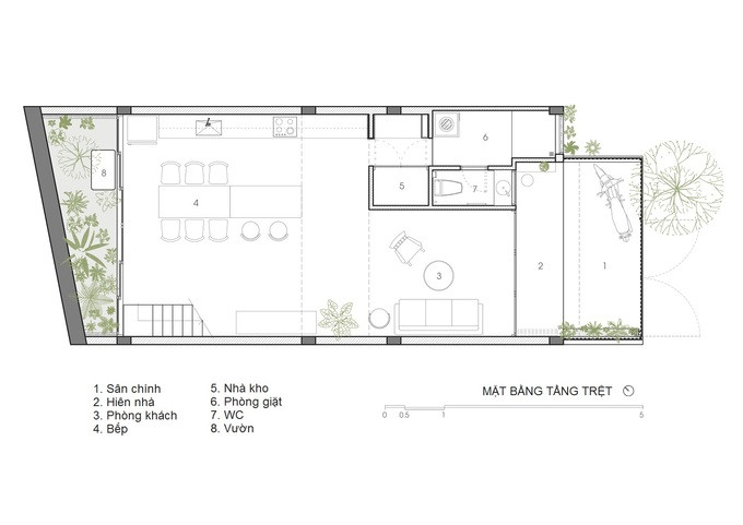
| Mặt bằng tầng trệt. |
![]() |
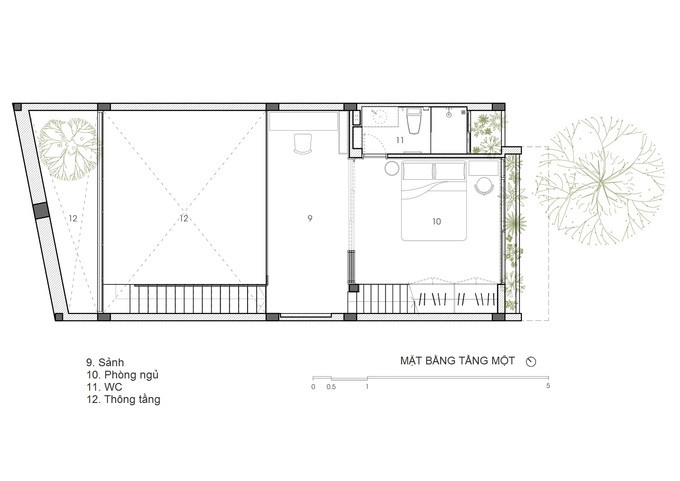
| Mặt bằng tầng một. |
![]() |
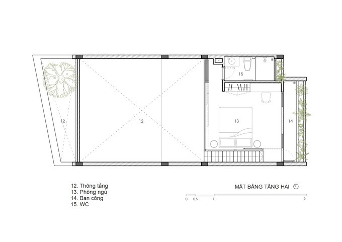
| Mặt bằng tầng hai. |
![]() |
| Mặt bằng mái. |
![]() |
| Mặt đứng và mặt cắt công trình. |














