Theo Thúy Hiền/Theo Spicy Architects/Archdaily/TPO
Sự kết hợp giữa vật liệu gỗ với các bảng tường bê tông màu xám tưởng như khác biệt lại giúp ngôi nhà có một không gian đồng nhất và ấn tượng.
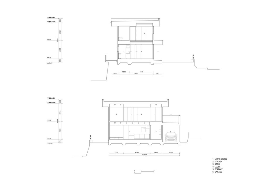
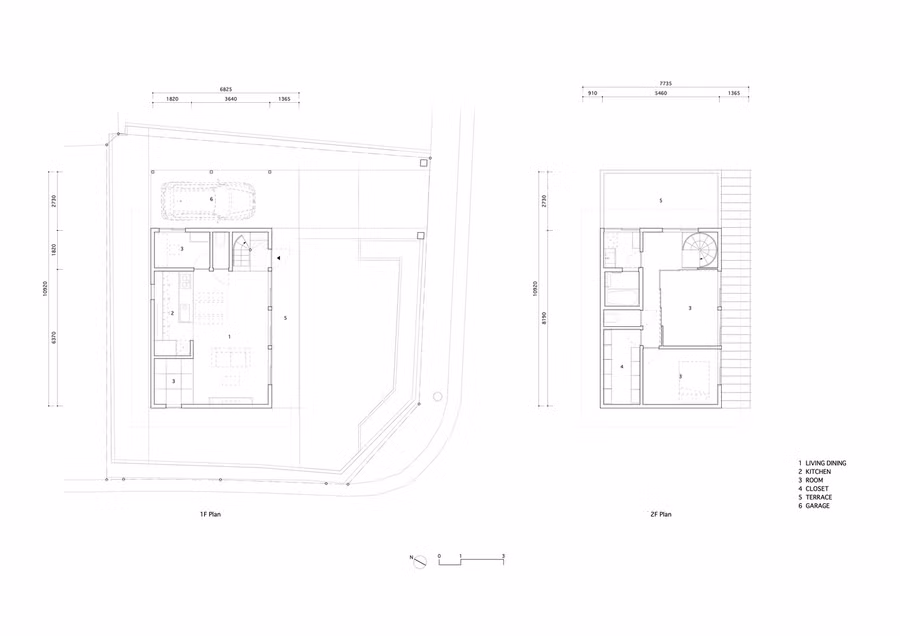
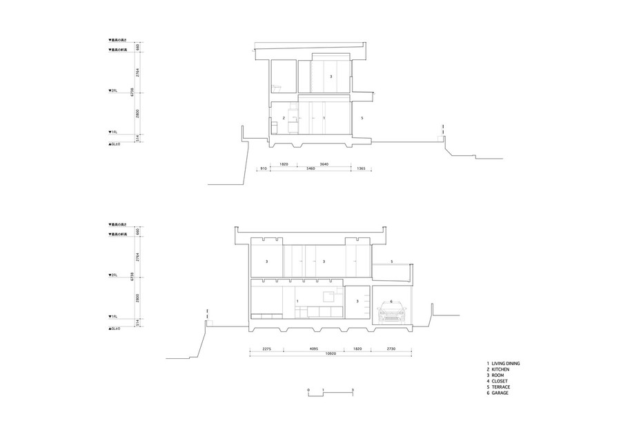
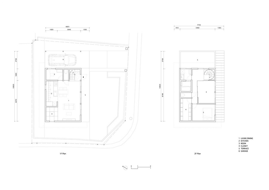
Ngôi nhà này là tổ ấm của một gia đình gồm 3 thành viên với bối cảnh xung quanh là những ngôi nhà mang đặc trưng của vùng Okinawa (Nhật Bản) với phần mái gần như bằng phẳng và có phần hiên lớn đua ra giúp giảm bớt tác động gay gắt của ánh nắng mặt trời.
Vật liệu gỗ được sử dụng để xây dựng kết cấu chính của ngôi nhà nhằm phù hợp với môi trường xung quanh và đáp ứng chi phí của gia chủ.
Sân vườn của ngôi nhà nằm ở hướng Nam trong khi gara để xe ở hướng Đông.
Để tạo ra những bóng râm che nắng cho ngôi nhà, kiến trúc sư mở rộng khu vực nhà kho ở tầng một và phần hiên đua ra ở tầng hai.
Màu sắc chủ đạo của ngôi nhà được định hướng theo tông xám trong khi dầm và đồ nội thất bằng gỗ giữ nguyên màu sắc để tạo cảm giác ấm cúng và bình yên cho không gian.
Sự kết hợp giữa vật liệu gỗ với các bảng tường bê tông màu xám tưởng như khác biệt lại giúp ngôi nhà có một không gian đồng nhất và ấn tượng.
(GLO)- Phản ánh đến Báo và phát thanh, truyền hình Gia Lai, người dân khu vực Quy Nhơn cho biết: Vỉa hè và khu vực công cộng dọc các tuyến đường Xuân Diệu, Nguyễn Huệ (phường Quy Nhơn), An Dương Vương (phường Quy Nhơn Nam) xuất hiện nhiều vị trí xuống cấp, hư hỏng.
(GLO)- Ủy ban nhân dân Gia Lai vừa ban hành Quyết định phê duyệt phương án đấu giá quyền sử dụng đất để thực hiện dự án khách sạn, trung tâm mua sắm phức hợp tại phường Pleiku với tổng mức đầu tư sơ bộ hơn 605,4 tỷ đồng.
(GLO)- Khối lượng rác thải sinh hoạt tại khu vực Pleiku (tỉnh Gia Lai) tăng nhanh trong khi hạ tầng xử lý quá tải, cơ chế chưa đồng bộ và ý thức một bộ phận người dân còn hạn chế. Thực trạng này khiến công tác thu gom, xử lý gặp nhiều khó khăn, đòi hỏi giải pháp căn cơ và sự chung tay từ cộng đồng.
Căn nhà có diện tích 160m2 và diện tích sử dụng là khoảng 250m2 gồm 1 phòng khách, một bếp, 4 phòng ngủ, 3 WC, 1 phòng thờ và gác lửng. Thời gian xây dựng và hoàn thiện là 8 tháng với tổng chi phí khoảng 2,3 tỷ đồng.
Công trình là một chốn dừng chân bình yên, nơi mỗi ngày thức dậy là một khởi đầu nhẹ nhàng, tràn đầy kết nối với thiên nhiên và những giá trị giản đơn. Ngôi nhà tràn ngập ánh sáng tự nhiên và gió trời qua những khoảng mở rộng, khiến không gian luôn thoáng đãng dù nhịp sống bên ngoài hối hả.
(GLO)- Sáng 27-2, Ban Quản lý Dịch vụ công ích Quy Nhơn (Sở Xây dựng) cho biết đang khẩn trương sửa chữa lan can cầu treo Công Viên (đoạn nối giữa phường Diên Hồng với xã Ia Hrung) bị ô tô tông hư hỏng nặng, tiềm ẩn nguy cơ mất an toàn giao thông.
Căn nhà được xây dựng trên diện tích đất 280 m2, diện tích xây dựng 110m2, ưu điểm lớn nhất là xung quanh khu đất đều nhà thấp, cây cối nhiều và ảnh hưởng nắng hướng Tây không đáng kể, giao thông thuận lợi...
Giữa áp lực diện tích ngày càng thu hẹp của đô thị, cách thiết kế một căn hộ chỉ 50m2 tại Thủ Thiêm (TPHCM) đã mở ra cách nhìn mới về không gian sống. Nhờ trần cao 5,5m và tư duy thiết kế táo bạo, căn hộ không chỉ “nở” ra mà còn thể hiện được cá tính của gia chủ.
(GLO)- UBND tỉnh Gia Lai vừa ban hành quyết định về việc đấu giá quyền sử dụng đất thực hiện dự án khu đô thị CK54 (phường Pleiku). Đây là dự án khu đô thị quy mô lớn, kỳ vọng tạo động lực phát triển không gian đô thị, hạ tầng kỹ thuật và hạ tầng xã hội khu vực phía Tây của tỉnh.
Với dự án nội thất do 3A Signature thực hiện, sắc xanh thanh lịch được thổi hồn xuyên suốt từng không gian, tạo nên một tổng thể hiện đại, sang trọng và đầy cá tính – nơi mỗi góc nhà đều mang lại cảm xúc muốn ở lại thật lâu.
(GLO)- Tại dự thảo sửa đổi Quy chuẩn kỹ thuật quốc gia về nhà chung cư, Bộ Xây dựng đã bổ sung quy định về khu vực để xe điện, trạm sạc, trạm đổi pin trong dự án chung cư. Dự thảo này đang được Bộ Xây dựng lấy ý kiến của các bộ, ngành, địa phương.
(GLO)- Ngày 6-1, lãnh đạo UBND phường Quy Nhơn Đông (tỉnh Gia Lai) cho biết: Địa phương đang tổ chức thu gom, xử lý rác thải tại 2 tuyến đường giao thông dọc hệ thống tiêu thoát lũ ven sông Dinh.
(GLO)- Nhân rộng công trình đạt tiêu chuẩn xanh nói chung, chứng nhận xanh EDGE nói riêng là mục tiêu đang được ngành Xây dựng tỉnh và nhiều nhà đầu tư theo đuổi.
Concept căn hộ Cát House dựa trên câu chuyện của chủ nhà với mong muốn sở hữu một không gian nhiều cát, ánh nắng và mang hơi thở đại dương: “Chị muốn nhà mình như đang đi dạo trên bãi cát, có nắng, có gió, có sự dịu dàng và nữ tính.”
Ngôi nhà phố ở vùng ven Đà Nẵng, được kiến tạo như một chốn bình yên thân thuộc, nơi ký ức làng quê truyền thống được gìn giữ giữa nhịp sống đô thị hiện đại.
Giữa khu đất nhiều hạn chế ở Gò Vấp (TPHCM), nhà Notes được hình thành từ hình ảnh quen thuộc của một tờ giấy note nhẹ nhàng, linh hoạt và mang dấu ấn cá nhân rõ rệt.
(GLO)- Dự án Tổ hợp khách sạn và nhà phố thương mại do Công ty cổ phần Tập đoàn FLC làm chủ đầu tư tại phường Diên Hồng (tỉnh Gia Lai) được điều chỉnh thời gian hoàn thành đến tháng 6-2028.
Mục tiêu của công trình là tạo ra 2 khối nhà song song, khu giữa là khu liên kết, nhằm tạo cho tất cả các không gian trong nhà đều có tầm nhìn và điều hòa được đủ ánh sáng và gió lưu thông.